注意!《建筑防煙排煙系統技術標準》圖示更改了(內附更正說明)

《建筑防煙排煙系統技術標準》GB51251-2017于今年8月1日實施,現已實施兩個多月。國家建筑標準設計網近期發布了15K606《<建筑防煙排煙系統技術標準>圖示》更正說明。
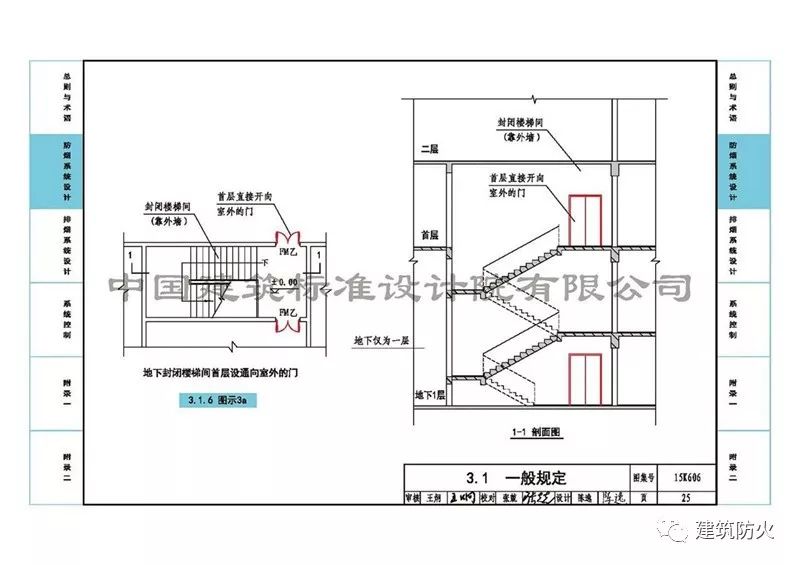
具體更改內容如下:(點擊圖片可查看大圖)
1、第1頁在“總則”前增加序號“1”。

2、第25頁、第26頁替換了其中的平面圖和剖面圖,使其對標準的原意更準確。


3、第79頁的“4.2.4圖示3a”中刪除了“L1≥1.5m”的標注,同時,“注釋2”中也刪除了同樣內容。

4、第98頁的“4.4.3圖示”中排煙支管上增加了“280℃排煙防火閥”,刪除了“風口控制要求”中“常閉排煙口”280℃自動關閉的字樣。

5、第112頁的“4.4.12圖示3”中側墻上安裝常閉多葉排煙口前,排煙支管上增加了“280℃排煙防火閥”。

6、第138頁的正文中,刪除第4.6.5條的第3款。

7、第140頁的正文公式4.6.10中,“t”改為“火災增長時間”。

8、第143頁“第4.6.12條[算例1]”:一是字體小了;二是結合《自動噴水滅火系統設計規范》GB50084-2017,將前廳排煙計算從“有噴淋”改為“無噴淋”。

更正說明:

海灣消防安全有限公司主營:GST海灣消防報警設備銷售,消防工程施工改造,氣體滅火、電氣/漏電火災、消防水系統施工安裝,售后維修保養,檢測,調試,海灣消防網站:http://m.rd06mj.cn/;海灣消防服務熱線:4006-598-119
本頁關鍵詞:


蘇公網安備32058102002148號